近日,有市民在“深圳论坛”发帖
反映松岗街道松瑞路新建天桥项目
建设前未做充分调研
引起周边居民的不满
一起来关注
市民反映:新建天桥项目在建设前,未开展充分民意调研
据市民留言内容显示,松岗街道满京华小区松瑞路新建天桥在建设前未开展充分民意调研,项目报批流程存在疑点。周边居民特别是小区一期业主此前进行过多次投诉,但属地街道办及区级发改部门均无法有效解决问题。


沿街树木因施工被砍伐。图源:发帖网友
该市民在留言中还指出了松瑞路天桥建设的必要性存疑,据其反映,天桥选址区域周边50米范围内已有路口可供通行,此外,天桥正对居民楼的设置更因占用公共空间而引发了两边居民的不满。

据公开资料显示,该新建天桥项目位于深圳市宝安区松岗街道艺展二路北侧与松瑞路东侧交汇处,周边有多个住宅小区、工业园区及商圈。

街道办回应:该项目审批各环节符合要求,于2023年2月完成立项
面对市民的质疑,宝安区松岗街道办事处于日前回应表示,沙浦社区已于2024年7月22日至2024年7月24日以电子票征求的形式,对“松岗街道艺展二路北侧与松瑞路东侧交汇处建设人行天桥”的事项进了问卷调查,参与总人数828,同意人数764,占调查总人数92.27%。
此外,关于项目必要性问题,松岗街道松瑞路人行天桥位于松瑞路与艺展二路交汇处,随着满京华片区新建住宅入住率提高,周边商业逐步繁荣,松瑞路车流、人流显著增加,居民存在过街需求。项目前期已委托咨询单位开展论证分析工作,立体天桥方案可实现人车分流,既符合技术规范要求,又有效保障机动车通行效率、减少人行交通安全事故发生,建设天桥必要性充足。

资料图,图文无关。图源:IC photo
关于项目立项问题,本项目立项工作严格按照《宝安区政府投资项目管理办法》规定执行,审批各环节符合要求。项目于2023年2月完成立项,根据《建设项目环境影响评价分类管理名录(2021年版)》第五条及第七条规定,人行天桥不纳入建设项目环境影响评价管理。经综合研判不涉及重大公共利益或投资规模较大,对经济社会发展和生态环境也没有重大影响,项目不符合开展公示的条件。
2025年4月1日,松岗街道与满京华云著一期业主召开沟通会,就项目立项原因、推进历程、技术规范要求、建设必要性等内容进行了详细解释,并于2025年6月9日在满京华云著小区及业主群发布通告,关于项目建设背景原因、必要性、立项程序等问题已进行详细说明。

奥一新闻记者注意到,2024年1月,松岗街道办公布招标信息,其中显示松岗街道松瑞路人行天桥新建工程建设单位为深圳市宝安区松岗街道办事处,工程内容主要包括但不限于:桥梁工程、电气工程、绿化工程、电梯、其他工程、交通疏解工程、管线迁改工程等(具体内容详见施工图纸及工程量清单内容),项目计划总投资:1541万元。
招标工作随后展开,据2024年3月公布的招标结果显示,项目由深圳市新朗建设工程有限公司以859.415403万元中标,计划工期为150天。

图源:深圳公共资源交易中心
项目规划也获得了批准,2024年7月,深圳市规划和自然资源局宝安管理局发布通告称同意核发“松瑞路人行天桥”项目的《建设工程规划许可证》,并依规对《建设工程规划许可证》及总平面图进行公开。

松瑞路人行天桥项目《建设工程规划许可证》。图源:深圳市规划和自然资源局

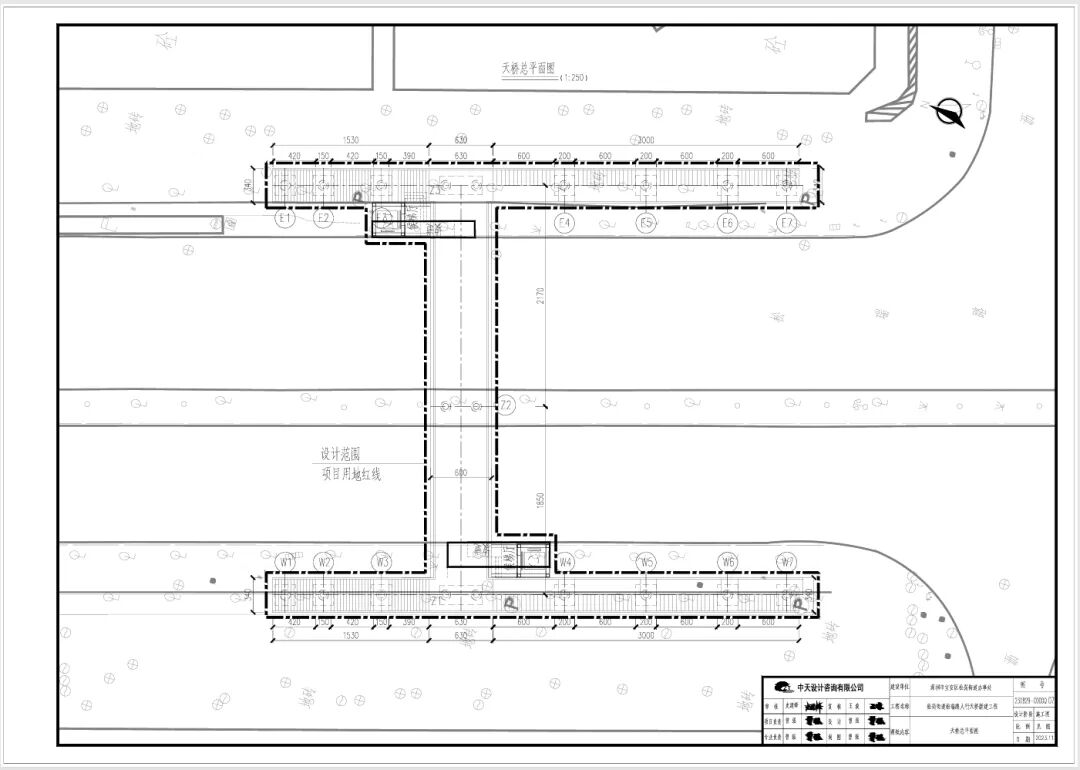
松瑞路人行天桥项目总平面图。图源:深圳市规划和自然资源局
看完推文后
你有什么想说的
欢迎在评论区留言
采写:奥一新闻记者 蔡诗妍
编辑:蔡诗妍
订阅后可查看全文(剩余80%)